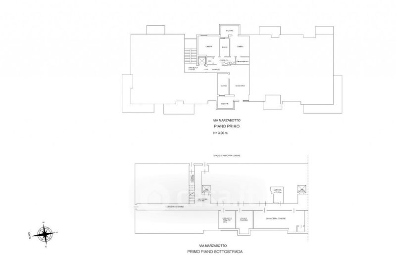
Appartamento in vendita Via Marzabotto , Parma
Salva
Casa.it
1/23
  • Street View
  • Map