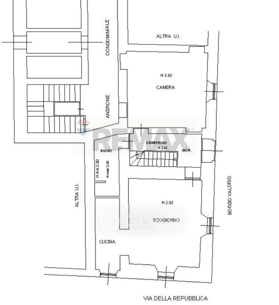
Appartamento in vendita Borgo Valorio 2, Parma
Salva
Casa.it
1/26
  • Street View
  • Map