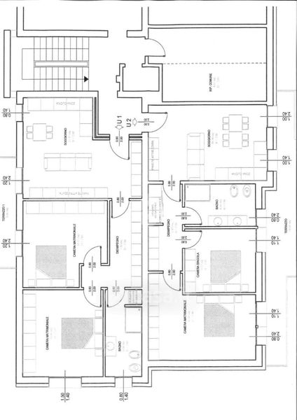
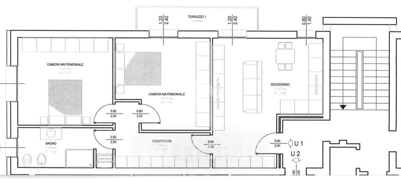
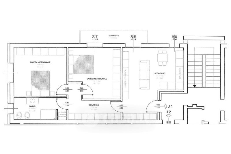
Appartamento in vendita Via Nazionale 150, Poggio Renatico
Salva
Casa.it
1/24
  • Street View
  • Map