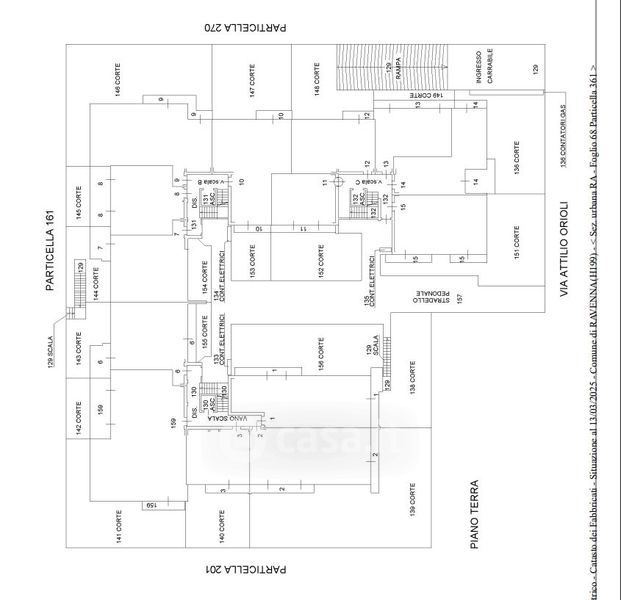
Appartamento in vendita Via Attilio Orioli , Ravenna
Salva
Casa.it
1/32
  • Street View
  • Map