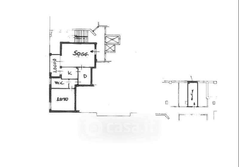
Appartamento in vendita Via Giuseppe Turri 33, Reggio Emilia
Salva
Casa.it
1/15
  • Street View
  • Map