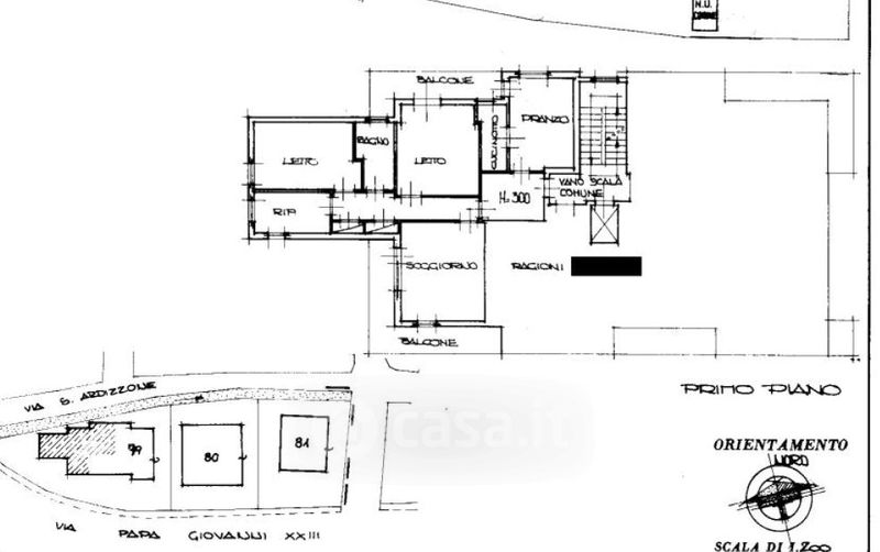
Appartamento in vendita Via Simone Ardizzone , Reggio Emilia
Salva
Casa.it
1/33
  • Street View
  • Map