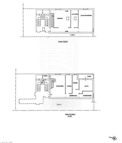
Appartamento in vendita Via Roberto Ardigò , Reggio Emilia
Salva
Casa.it
1/15
  • Street View
  • Map