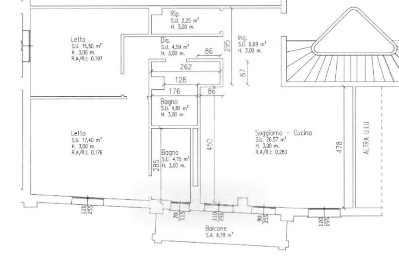
Appartamento in vendita Viale Risorgimento 72, Reggio Emilia
Salva
Casa.it
1/29
  • Street View
  • Map