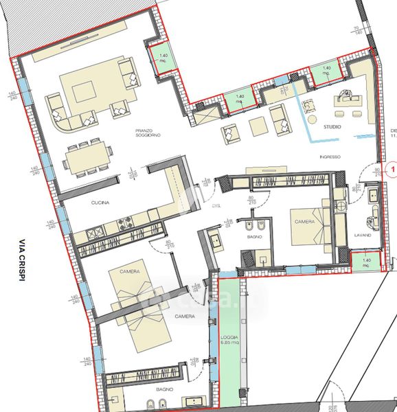
Appartamento in vendita Via Francesco Crispi 3, Reggio Emilia
Salva
Casa.it
1/52
  • Street View
  • Map