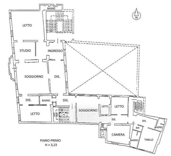
Appartamento in vendita Via Lodovico Ariosto 4, Reggio Emilia
Salva
Casa.it
1/26
  • Street View
  • Map