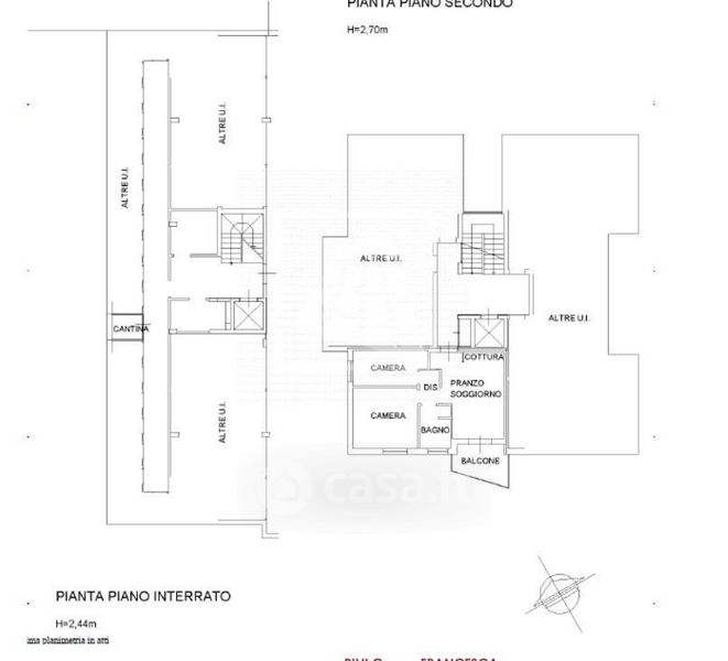
Appartamento in vendita Largo Marco Biagi 17, Reggio Emilia
Salva
Casa.it
1/12
  • Street View
  • Map