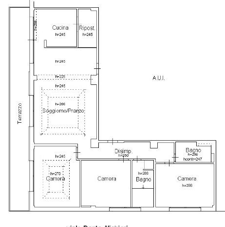
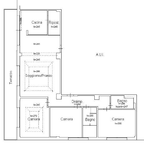
Appartamento in vendita Viale Filippo Corridoni , Riccione
Salva
Casa.it
1/49
  • Street View
  • Map