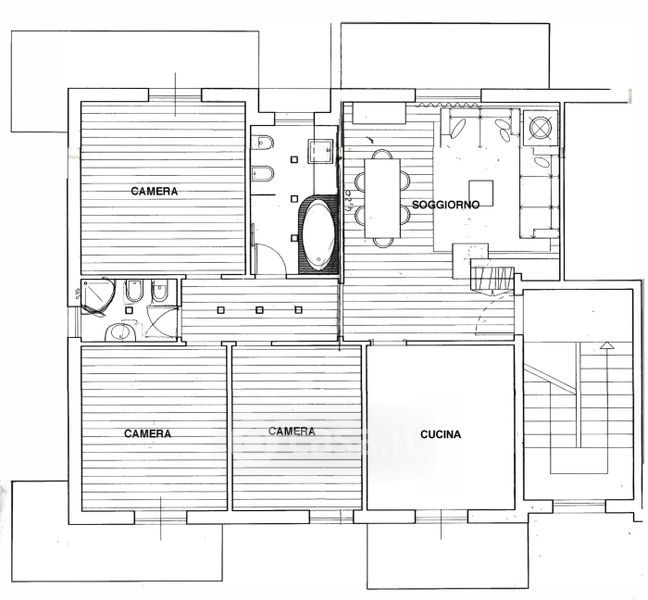
Appartamento in vendita Di Mezzo 53, Rimini
Salva
Casa.it
1/38
  • Street View
  • Map