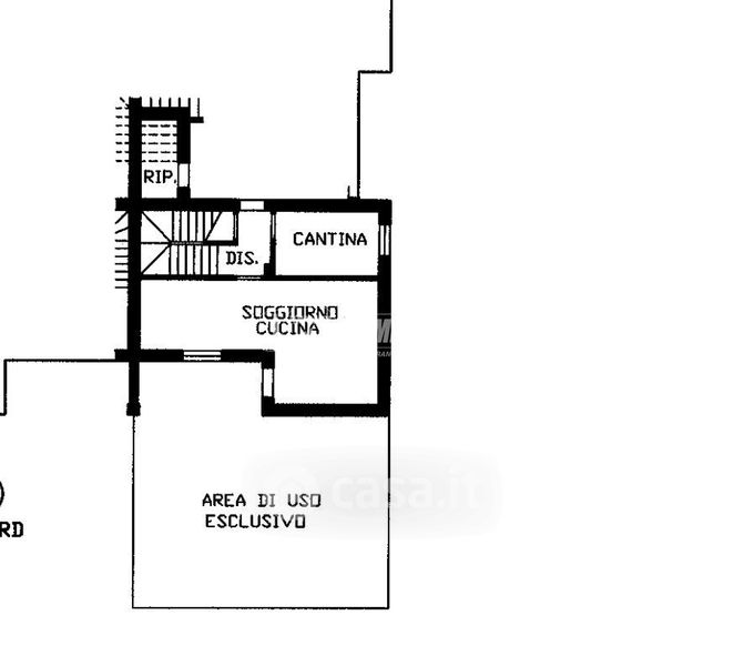
Appartamento in vendita Via Enrico Berlinguer 32, San Cesario sul Panaro
Salva
Casa.it
1/14
  • Street View
  • Map