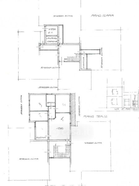
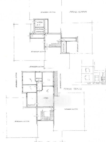
Appartamento in vendita Strada G. Matteotti 2 -6, Torrile
Salva
Casa.it
1/30
  • Street View
  • Map