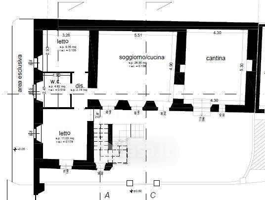
Appartamento in vendita Via Carlo Casalegno , Vigolzone
Salva
Casa.it
1/6
  • Street View
  • Map