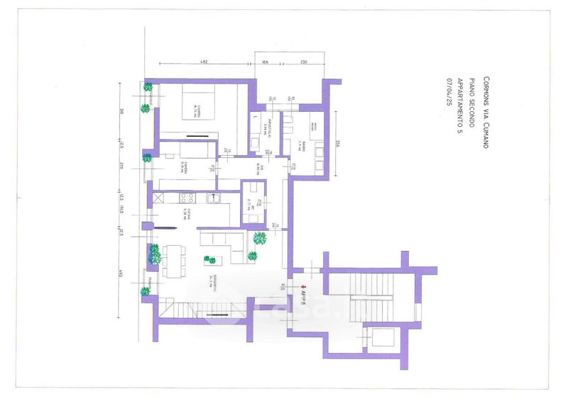
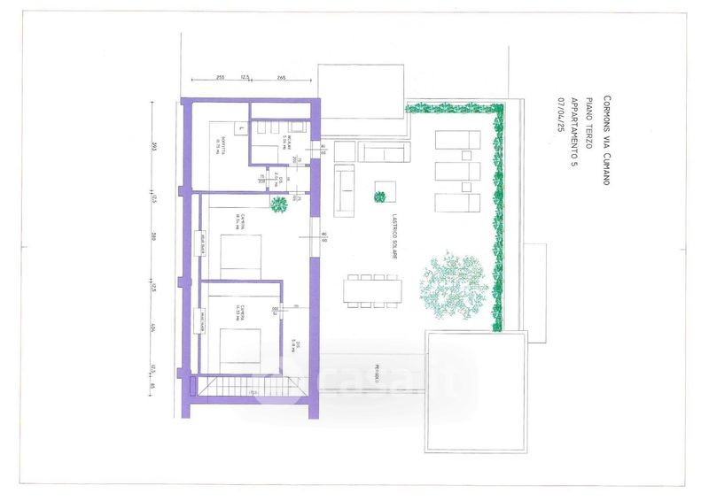
Appartamento in vendita Via C. Cumano 17, Cormons
Salva
Casa.it
1/9
  • Street View
  • Map