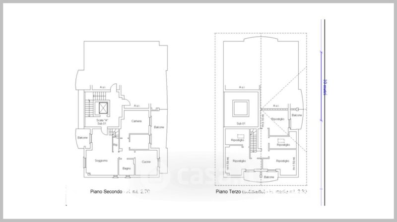
Appartamento in vendita Via Antonio Bergamas , Gradisca d'Isonzo
Salva
Casa.it
1/37
  • Street View
  • Map