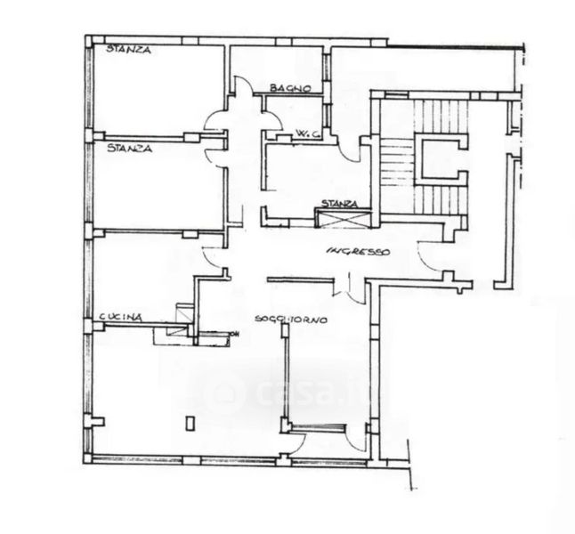
Appartamento in vendita Largo San Giovanni 21, Pordenone
Salva
Casa.it
1/32
  • Street View
  • Map