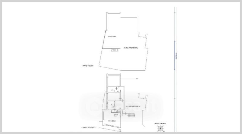
Appartamento in vendita Via Dante Alighieri , San Pier d'Isonzo
Salva
Casa.it
1/39
  • Street View
  • Map