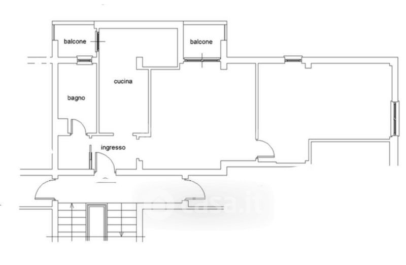
Appartamento in vendita Piazza Santa Maria Regina , Anzio
Salva
Casa.it
1/19
  • Street View
  • Map