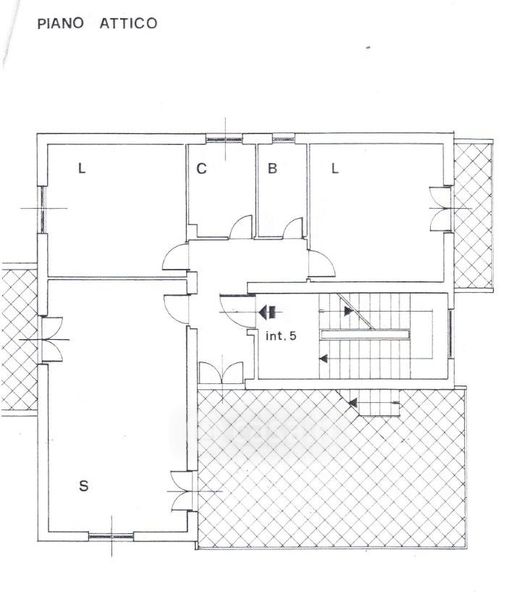
Appartamento in vendita Via delle Bouganvillae 1, Anzio
Salva
Casa.it
1/19
  • Street View
  • Map