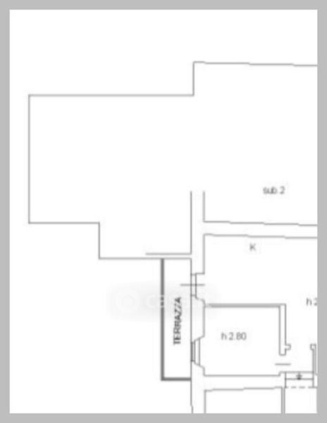
Appartamento in vendita Borgo Cave , Arnara
Salva
Casa.it
1/37
  • Street View
  • Map