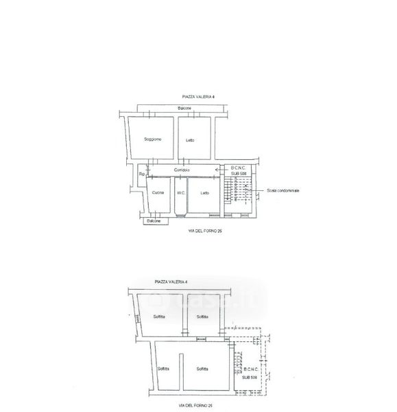
Appartamento in vendita Via del Forno 25, Arsoli
Salva
Casa.it
1/28
  • Street View
  • Map