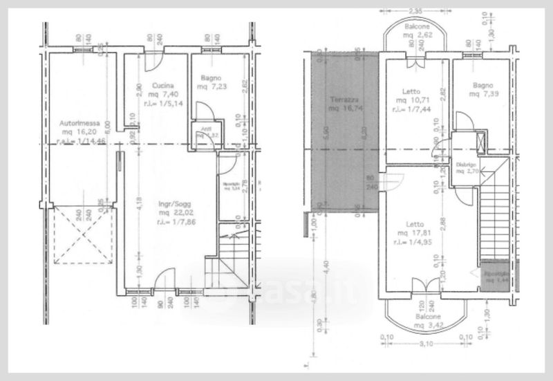
Appartamento in vendita Via Giuseppe Mazzini , Bassano Romano
Salva
Casa.it
1/32
  • Street View
  • Map