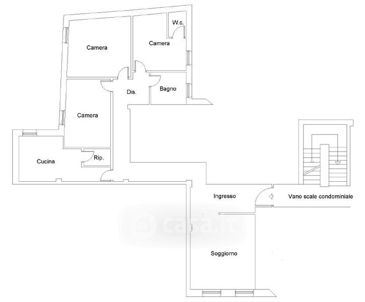
Appartamento in vendita Via Principe di Napoli 19, Bracciano
Salva
Casa.it
1/17
  • Street View
  • Map