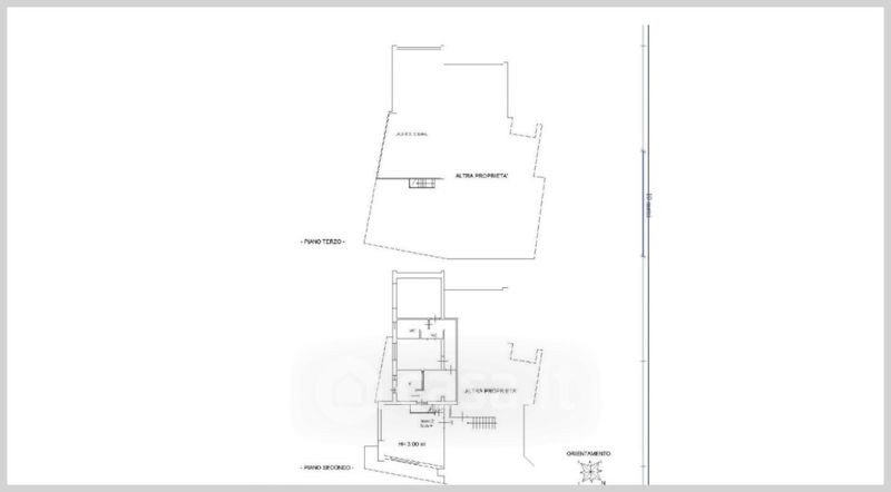
Appartamento in vendita Via II Giugno , Capena
Salva
Casa.it
1/32
  • Street View
  • Map