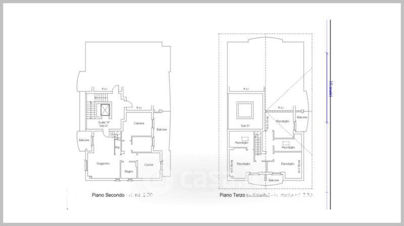
Appartamento in vendita Largo delle fornaci , Capranica
Salva
Casa.it
1/32
  • Street View
  • Map