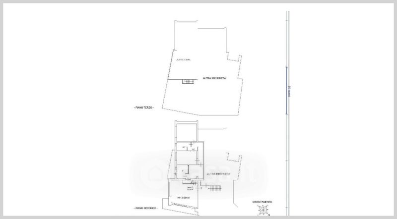
Appartamento in vendita Via Tagliamento , Caprarola
Salva
Casa.it
1/37
  • Street View
  • Map