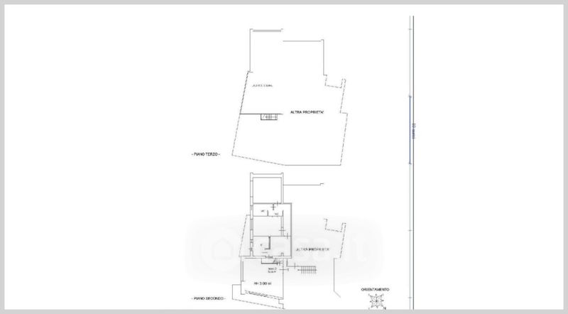
Appartamento in vendita Via Civita Castellana , Castel Sant'Elia
Salva
Casa.it
1/32
  • Street View
  • Map