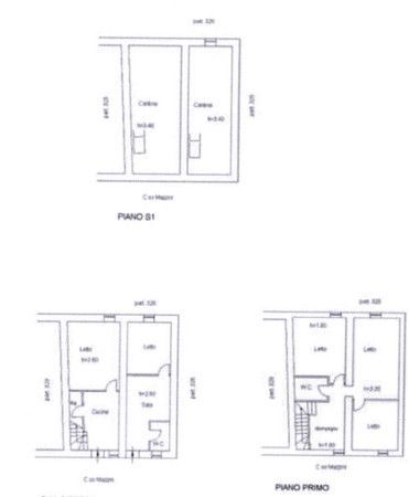
Appartamento in vendita Corso Giuseppe Mazzini , Cittaducale
Salva
Casa.it
1/19
  • Street View
  • Map