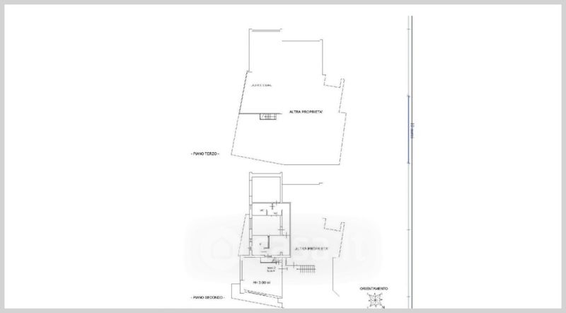
Appartamento in vendita Piazza San Nicola , Faleria
Salva
Casa.it
1/32
  • Street View
  • Map