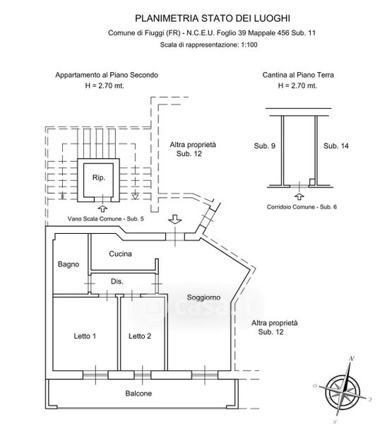
Appartamento in vendita Via Dè Medici 35, Fiuggi
Salva
Casa.it
1/29
  • Street View
  • Map