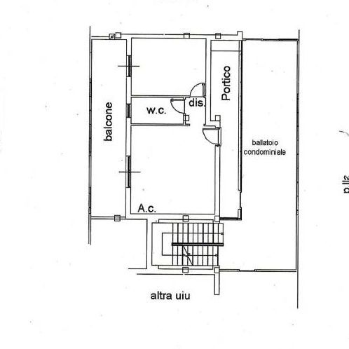
Appartamento in affitto Via delle Dune , Fiumicino
Salva
Casa.it
1/31
  • Street View
  • Map