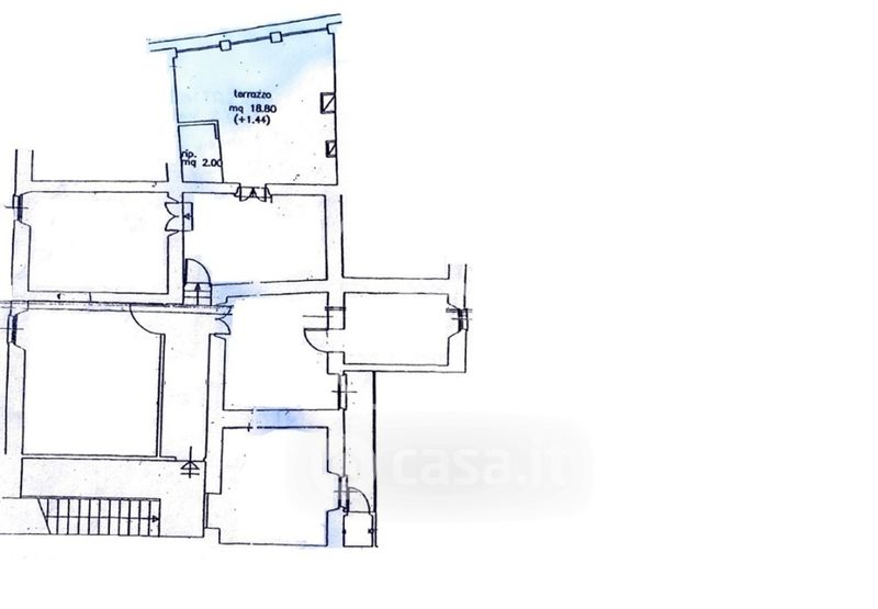
Appartamento in vendita Via San Martino 4, Frascati
Salva
Casa.it
1/17
  • Street View
  • Map