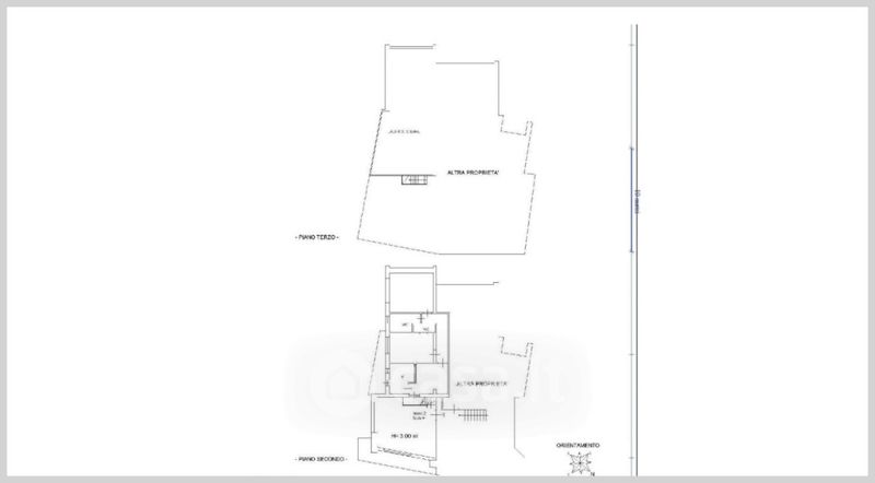
Appartamento in vendita Via Mirtense , Frasso Sabino
Salva
Casa.it
1/32
  • Street View
  • Map