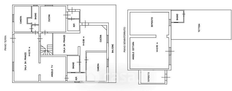
Appartamento in vendita Via Colle Cottorino 84, Frosinone
Salva
Casa.it
1/8
  • Street View
  • Map