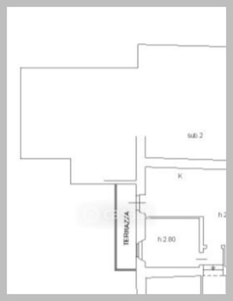
Appartamento in vendita Via San Vittore , Gradoli
Salva
Casa.it
1/37
  • Street View
  • Map