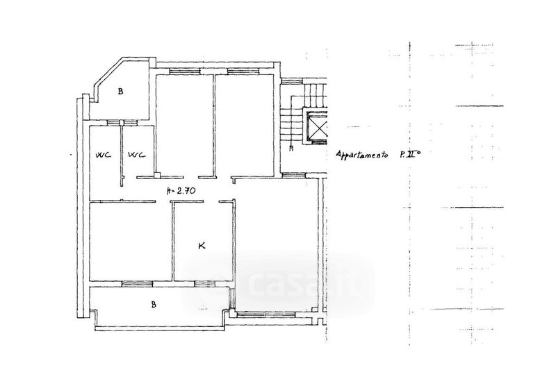
Appartamento in vendita Via Pitagora , Latina
Salva
Casa.it
1/47
  • Street View
  • Map