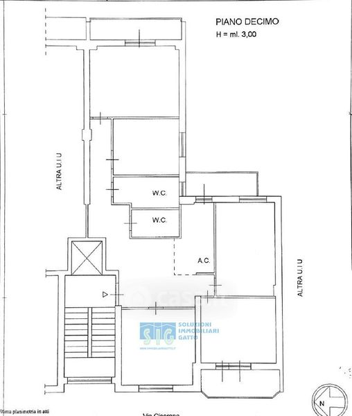
Appartamento in vendita Via Cicerone 44, Latina
Salva
Casa.it
1/30
  • Street View
  • Map