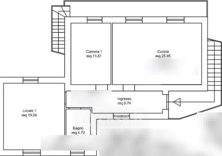
Appartamento in vendita Via del Sassone , Marino
Salva
Casa.it
1/13
  • Street View
  • Map