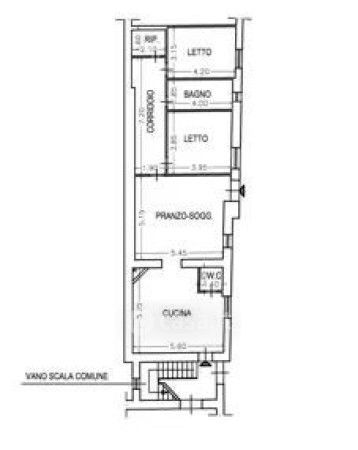
Appartamento in vendita Via Appia 269, Minturno
Salva
Casa.it
1/20
  • Street View
  • Map