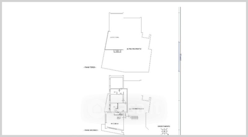
Appartamento in vendita Via Cavour , Monte Compatri
Salva
Casa.it
1/37
  • Street View
  • Map