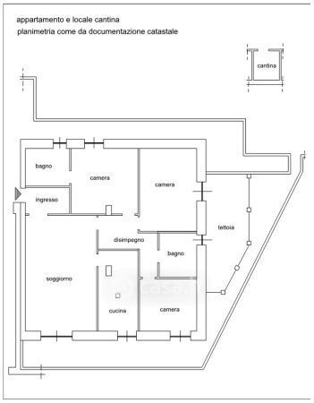
Appartamento in vendita Via XXV Luglio 11, Monte Porzio Catone
Salva
Contatta l'inserzionista
Casa.it