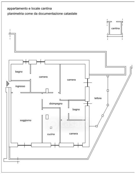
Appartamento in vendita Via XXV Luglio 11, Monte Porzio Catone
Salva
Casa.it
1/19
  • Street View
  • Map