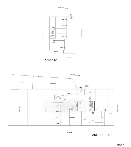
Appartamento in vendita Via del Pascolaro , Monte Romano
Salva
Casa.it
1/38
  • Street View
  • Map