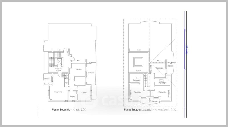
Appartamento in vendita Strada Provinciale 131 , Monte San Giovanni Campano
Salva
Casa.it
1/4
  • Street View
  • Map