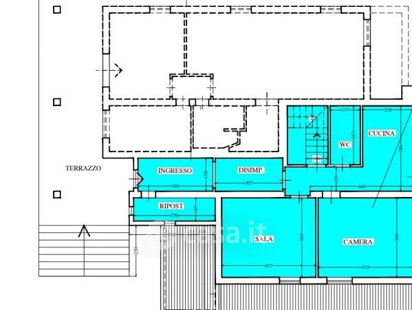
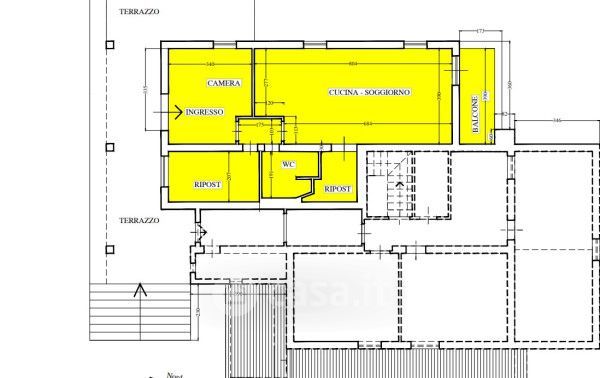
Appartamento in vendita Località la Moletta , Monte San Giovanni in Sabina
Salva
Casa.it
1/20
  • Street View
  • Map