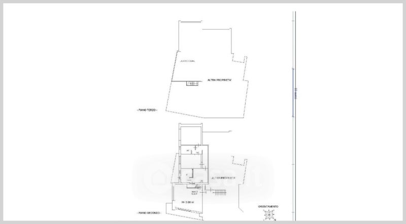
Appartamento in vendita Via Poggio Della Frusta , Montefiascone
Salva
Casa.it
1/32
  • Street View
  • Map