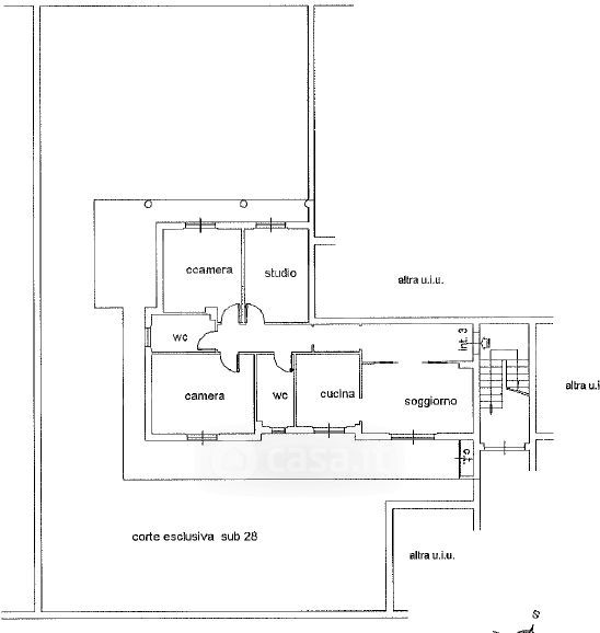
Appartamento in vendita Via Savio 34, Nettuno
Salva
Casa.it
1/34
  • Street View
  • Map